The Pekka Sauna
The Pekka Sauna
-
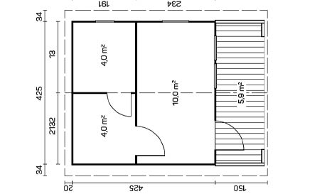
Extras include - 2 3/4'' wall logs / double ceiling / double thermal glass/ opening side window /porch with benches / interior alder benches /ice & water roofing / all pre cut parts / all hardware / thicker floor boards 1 1/8''
-
-
-
Extras include - 2 3/4'' wall logs / double ceiling / double thermal glass/ opening side window /porch with benches / interior alder benches /ice & water roofing / all pre cut parts / all hardware / thicker floor boards 1 1/8''
-
-
Size
-
-
-
Price
-
-
-

